Článek
„Tento dům není navržen tak, aby byl dokonalý v momentě svého dokončení. Jeho kvality budou narůstat s průběhem let. S tím, jak se budou pozvolna měnit potřeby jeho obyvatel, a také, jak se bude pozvolna měnit jeho vzhled a role v okolním prostředí,“ vysvětluje architekt Daisuke Sugawara.

Každá část domu stárne jinou rychlostí, a tak dům vypadá z každé strany trochu jinak.

Po vstupu do domu se návštěvník ocitne na malém uzvřeném dvorečku.
Podle architektů musí dům navrhovaný do hustě zastavěných měst splňovat čtyři základní požadavky, aby svým obyvatelům mohl plnohodnotně sloužit skutečně po celý život, a ne jen po určitou část.
Musí být na malé ploše, musí umět držet krok s proměňujícím se stylem života svých obyvatel, měl by se svým vzhledem podílet na proměnách vzhledu okolního města a také by měl nabídnout různá prostředí pro život, ne jen suchý, uměle vytápěný interiér a ničím nekorigovaný exteriér.

Na fasádu domku byla použita speciální směs omítky obohacená o železných prach, který se postaral o rezavý vzhled odmu.

Tento svůj názor převedli japonští architekti do praxe v podobě domku, jenž se vymyká zaběhlému stylu moderní architektury už svým vzhledem.
Jeho fasády vytvořili z kombinace tří materiálů - skla, kovové mřížoviny a speciálního druhu omítky, do níž byl přidán železný prach. Vzhled domu se tedy bude vlivem povětrnostních podmínek neustále měnit. To podle architektů celkem dobře vystihuje charakter tokijského předměstí, kde se neustále domy bourají, aby mohly vzniknout stavby nové. Tento dům se tedy bude měnit i bez bourání.


Koupelna je umístěna v přízemí domku.

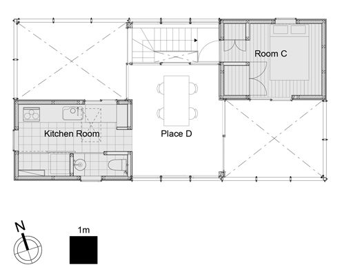
Jednotlivé místnosti jsou navrženy tak, aby se jejich účel mohl kdykoli změnit.
V hustě zastavěných místech je velice důležité, aby se architekt dokázal vměstnat se svým projektem na velice malou plochu.
V tomto případě má půdorys dvoupodlažního domku velikost pouhých 38 m2, přičemž celková plocha jeho podlah dává dohromady 76,30 m2. Na výšku má pak dům 6,87 m.
Přesto jeho obyvatelé nemají důvod k pocitu stísněnosti. Je to především díky velkému podílu semi-interiérových prostorů, které si ve větší či menší míře ponechávají venkovní klima a zároveň je nelze považovat za exteriér domu. Skutečně vnitřních, uzavřených místností je v domě jen několik.

Horní místnost může zpočátku sloužit jako ložnice rodičů.

Sklo a mřížovina jsou hojně využity na fasádě i v interiéru domu.

Většina místností je navíc navržena tak, aby obyvatelé mohli jejich účel v průběhu času měnit podle aktuálních potřeb rodiny.
Lze očekávat například, že zatímco zpočátku budou rodiče v horním patře a děti ve spodním, později se jejich potřeby vymění a rodiče budou raději v přízemí, zatímco děti si ochotně vystoupají do svých pokojů po schodech atd.

Přízemí

První poschodí

Rozčlenění domu podle charakteristiky exteriéru a interiéru

Dům byl navržen jako variabilní prostor, kam se s trochou skromnosti vejde různý počet obyvatel v různých vzájemných vztazích.

Dům nabízí prostředí se čtyřmi druhy klimatu.



